Dom w Piastowie, 160 m2, garaż, odbiór wiosna 2026.
Piastów Pokaż na mapie ›
Dodane: Czwartek, 12 Luty, 2026 20:28
1 670 000 zł
10438 zł/m2
Szczegóły ogłoszenia
- Kategoria: Domy / Sprzedaż
- Powierzchnia:160 m2
- Liczba pokoi:5 i więcej pokoi
- Rynek:Pierwotny
- Rok budowy:2026
- Sprzedaż:Pośrednik
- Cena: 1 670 000 zł / 10438 zł/m2
Opis oferty
Oferta dodana za pomocą Multiportalu BeBrokerZapraszam do obejrzenia domu dwulokalowego zlokalizowanego w Piastowie.
Inwestycja jest bliska ukończenia. Dom znajduje się w cichej okolicy, w drugiej linii zabudowy, z wygodnym wjazdem z kostki, wokół przyjemna zabudowa sąsiedzka ze sporą ilością zieleni.
Główne parametry:
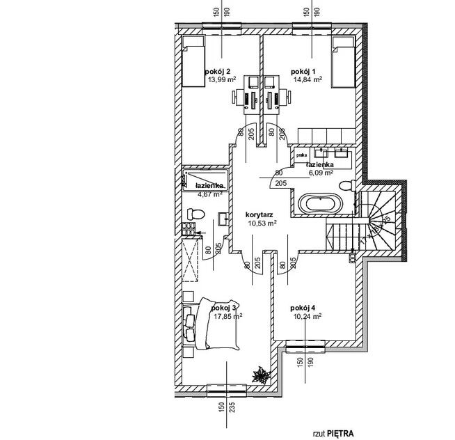
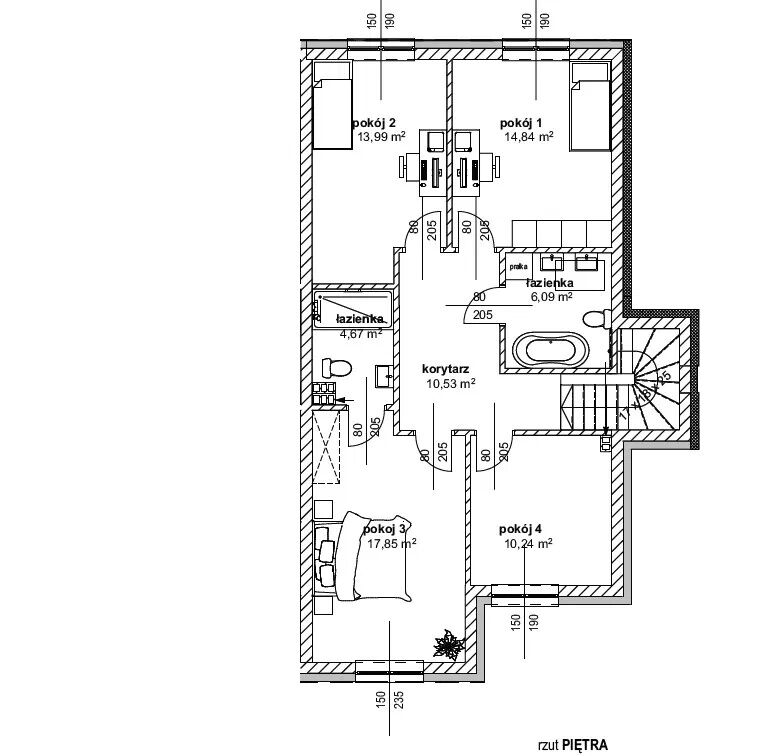
- powierzchnia użytkowa lokalu to 159,76 m2
- ogródek ma ponad 150 m2
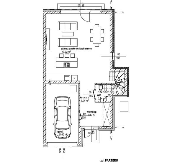
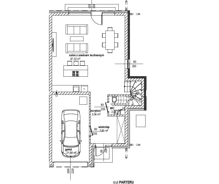
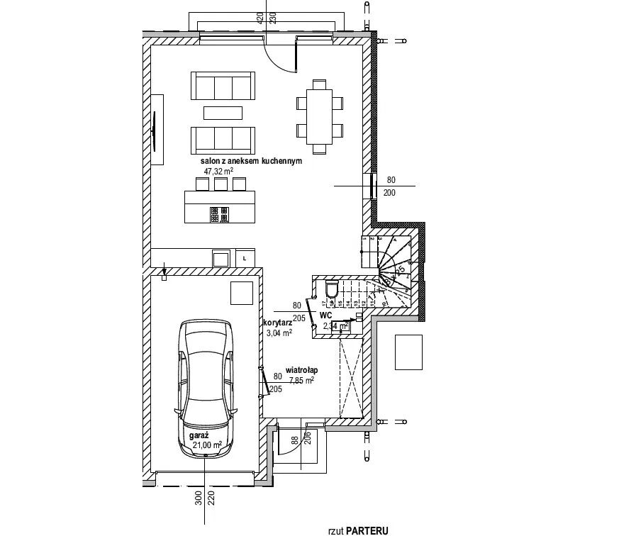
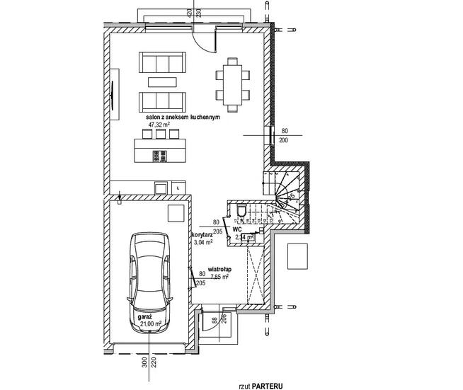
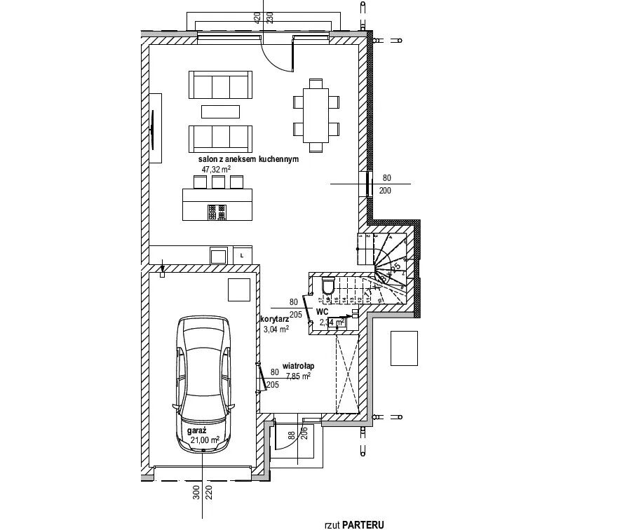
- PARTER: duży wiatrołap, salon z kuchnią (ok 47 m2), toaleta, wygodny garaż o powierzchni 21 m2 w bryle budynku
- PIĘTRO: 4 duże sypialnie (ok. 14+15+18+10 m2) oraz 2 łazienki
- garaż na jedno auto plus drugie wygodne miejsce do parkowania na terenie
- ogrzewanie podłogowe w całym domu, zasilane oszczędną pompą ciepła
- przygotowanie do montażu klimatyzacji we wszystkich pokojach,
- media woda oraz kanalizacja miejska (MPWiK), szybki internet (światłowód)
Zakończenie wszelkich prac budowlanych oraz zagospodarowania terenu planowane jest na wiosnę 2026r.
Inwestycja objęta Deweloperskiem Funduszem Gwarancyjnym, sprzedaż realizowana bezpośrednio przez dewelopera (adres strony wwwperydomycom)
Zapraszam do kontaktu i prezentacji.
*z góry dziękuję za wszelkie usługi brokerskie/agencyjne, nie skorzystam
Telefon: 452 - pokaż numer telefonu -
Sprawdź zainteresowanie tym ogłoszeniem
Wyświetlenia
Data dodania
Ostatnio widziany
Obserwujących
Wysłane zapytania
Odsłony telefonu
Powiadom o podobnych ogłoszeniach
Lokalizacja: Piastów
Kategoria: Nieruchomości » Domy » Sprzedaż
Cena: od 1419500 zł do 1920500 zł Powierzchnia : od 136 m2 do 184 m2
Chcę otrzymywać powiadomienia o nowych ofertach
- Wypromuj ogłoszenie
- Zgłoś naruszenie
- Drukuj ulotkę
- Edytuj/usuń ogłoszenie
- Udostępnij ogłoszenie
- Dodaj na Facebook
































